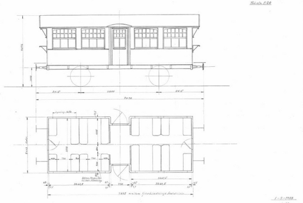
DSB CU 400 "Restaurantvogn"

DK13330

DSB CU 400, Übersichtszeichnung der DSB Maskinafdeling.

- 1933, © Danmarks Jernbanemuseum, www.jernbanekilder.dk: DSB-Mtgn-0001451

Zum DSB CU 400-Steckbrief